【KHギャラリー芦屋】安藤忠雄の初期の名作。小篠邸とも呼ばれる住宅兼ギャラリーで魅せる光とプロポーション

概要
さて、本日紹介する建築はKHギャラリー芦屋という、安藤忠雄氏の設計であり、日本を代表するファッションデザイナーのコシノヒロコさんの別荘兼アトリエとして建てられた建築です。
1981年に竣工し、増改築を繰り返しながら約30年にわたってコシノ氏が居住されていました。竣工当時は2棟の直方体の箱が地下で接続されたような形でしたが、円弧の壁を持つ棟が増築され、現在はギャラリーへと改装されています。
この建物は、安藤忠雄氏の初期の名作で、コンクリート打ち放しの壁面に映し出される光がとても美しい建築となっています。
私は、それに勝るとも劣らず、プロポーションの美しさに圧倒されました。写真が、つい魅入られてしまった縦長プロポーションの数々です。



左から、入口付近、中庭、入口を振り返ったところ、です。
私は、「一日一建築」と称して、自分の好きな建築について発信しています、著者のちぇりーです!
このサイトは、建築巡りが好きで、一級建築士の資格取得に向け勉強する建築学生が、使い手と作り手という両方の目線から、建築について学び、発信しています。ぜひ見ていって下さい!
見どころ
この建物は、鉄筋コンクリートでつくられた、幾何学的な形をしている建物であるにもかかわらず、敷地の斜面をはじめとする、自然と一体化しています。
公式サイト(営業時間、アクセス等)
公式サイト:TOP | KH GALLERY
見学方法
予約制で、無料で見学することができました。
2013年4月から一般公開が開始されたようです。
アクセス
住所:〒659-0003 兵庫県芦屋市奥池町17-5
私は車で訪れました。神戸の中心街からは少し離れた、喧騒からは程遠い場所にありました。駐車場は有料で少し遠いです。
シークエンス
こちらが外観となります。高低差のある斜面に少し埋めこまれるかのようなボリュームであるため、圧迫感などはありません。
安藤忠雄氏の建築でよくみられる、アプローチと沿わせて配置された一枚の壁によって、先への期待を高めています。

写真右奥の暗くなっているところがこの建物の入口です。
入口の最初の扉を抜けると、絞られた自然光の降り注ぐ空間が広がります。このような内外のあいまいになった空間を抜けた先にあるのが、右手のガラス戸が入口です。
まだ景色は見せず、光のみを取り込んでいます。これは、左に別の棟が見えるからでしょう。

その先には、このような広いホールが広がっています。右手を見ると、大きな開口部から、人工物が全く見えない大自然に包まれていることがわかります。
なぜ、真ん中に柱を落としたのでしょうか。


後ろを振り返ると、ゆったりとしたホールが見えます。右手の階段を降りるところを写したが右の写真になります。
このフロアは、入口から少し下がったスキップフロアとなっているので、目線の先には玄関を通して明るい空間と自然が、そして下には地下廊下へと続く暗く落ち着いた空間があります。
この二つの空間が同時に存在するのを見た瞬間に、私はこの写真が一番お気に入りの写真になりました。
アイストップ(階段など動線の先に配置する風景)に、自然を用いるのは建築家のよくやることですが、それをこのように二つの空間で分けて対比的に見せる、という手法には本当に感動しました。


暗い廊下を通り、もう一つの棟へ移動します。トップライトから落ちる光に導かれながら廊下を進むと…


こちらが、コシノ氏が居住していた時、ダイニングとして使われていた場所になります。
こちらも、右の、鉄筋コンクリートの洗練された人工物を見せる窓と、左の、少し視線を落として自然に目を向けさせる窓とで対比が効いていますね。



後ろを振り返ると、左手にキッチンが、その右には二階へと続く階段があります。この階段を登って左手に、以前のコシノ氏の寝室があったそうです。現在はこちらの部屋が、こちらのギャラリーを見学しに来るお客さんを出迎える方の使う、事務所として使われています。
右手の廊下から突き当りを右に曲がって、奥へ進むと右写真のように、ギャラリーへ続きます。


ギャラリーはこのように、円弧の壁によって隣家への視線をカットし、作品や自然へと目が向くように設計されています。安藤忠雄氏の作品は、本当に視線の誘導が鮮やかだと思いました。
右写真が、ギャラリー左手になります。トップライトから注ぐ光に、作品群が照らされ、自然のスポットライトのようです。


次の項から、詳しく見ていきます。
スポンサーリンク
建築としての評価は?
建築家
今回の設計は、安藤忠雄氏です。
この建物は、1981年竣工で、安藤忠雄氏の初期の名作といわれています。
ちなみに、安藤忠雄氏の初期と中期を分ける作品といわれているのは、光の教会(1989年)です。
他にも、安藤忠雄氏の代表作には、「風の教会」、「光の教会」、「六甲の集合住宅」、「地中美術館」、「住吉の長屋」、「水の教会」があります。
安藤忠雄氏の衝撃のデビュー作品、「住吉の長屋」は、以下のサイトで紹介しています。
同じく初期の作品である、風の教会は、以下のサイトで紹介しています。ぜひ見てください。
コンセプト
「自然の中で感覚を研ぎ澄まし制作活動を行う、アーティストのための別荘」

当時、コシノ氏は、自殺行為とまで言われながら、借金をしてこの住宅を安藤忠雄氏に依頼。20年間にわたりローンに苦しめられましたが、コシノ氏にとって自然と一体となることは、創作には欠かせないことだったそうで、海外で評価されたデザインの多くがこの家でつくられたものだそうです。
さらに、この住宅は、当時無名だった安藤忠雄氏の名前を世界に知らしめるきっかけでもあったそう。
世界的なアーティストが世界へと名を知らしめるのにかかわった、奇跡の様な住宅なんですね。
機能について
この建物の用途
この建物は、竣工当時は、コシノ氏の自宅として、その後、増改築を経て、現在はギャラリーとして使われています。
この建物は建築家 安藤忠雄氏の設計により、コシノの自宅として1981年に竣工したものです。以後、1984年に円弧の壁を持つ棟を増築し、2006年には南側の棟を大幅に改装しました。
引用:TOP | KH GALLERY
このギャラリーの展示について
コシノがファッションデザインと並行して制作を続けてきた絵画作品を中心に、アートとファッションの融合や他分野のアーティストとのコラボレーションなど、さまざまな展覧会やイベントを開催しています。
引用:TOP | KH GALLERY
私が訪れた時は、コシノ氏の絵画作品が展示されていました。コシノ氏は、作品作りにおいては迷うことがなく、ファッションデザインと並行して、なんと、2000もの絵画作品を作り上げたそうです。その一部を常時展示しています。「あしや芸術祭」というイベントもかつて開催されたようで、その時には、非公開の絵画も見られたそうです。
敷地

芦屋、という神戸から少し離れた、閑静な高級住宅街の中にあります。写真からもわかるように、かなりの傾斜地に、埋められたように建っています。

どの棟にいても、自然を感じることができます。あまりに自然に近く、さらに鉄筋コンクリートという素材の為、冬にはスキー用のコートを着て過ごすこともあったそうです。
さらに、窓の外には勾配のついた芝生の庭が。安藤忠雄建築は、その地域の地形を活かした建築という観点でも評価されています。押し寄せるような迫力にも、包み込むような安心感にも感じられる、不思議な作りです。
引用:KHギャラリー芦屋 レポート - あしや芸術祭
ディテール
階段の手すりのディテールがすごく洗練されていて美しかったです。全て一体的に作られていました。

図面より見る計画
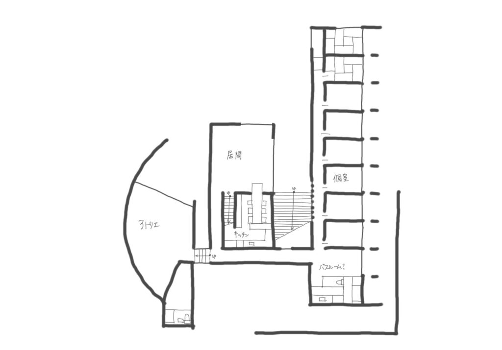
こちらが、一階部分の図面です。こちらの図面は、増改築がされる前の図面になっています。
ネットには、増改築後の現在の図面が見つかりませんでした。

ここからは余談です。
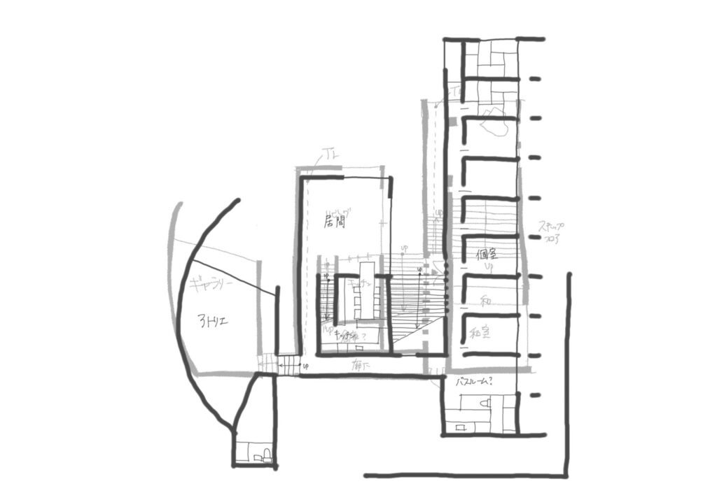
私が勝手にやっているプロジェクト、「感覚図面」では、今回はこのような図面を描きました。

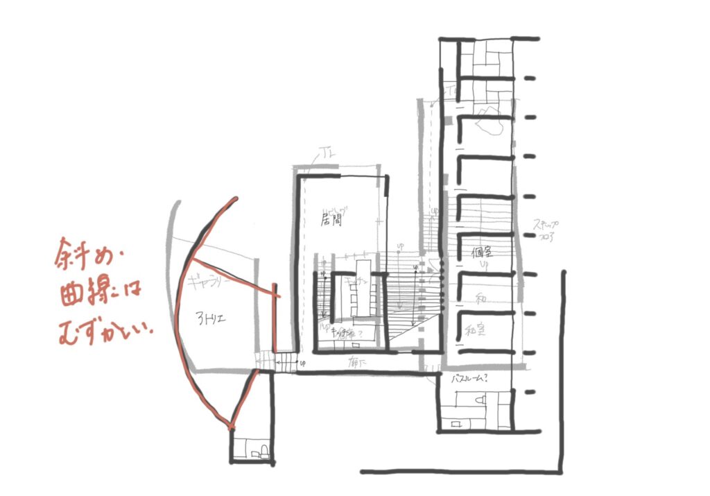
二つを重ね合わせてみると…改築された右の棟は解りませんが、左のアトリエ部分が、図面とは異なって感覚していました。
人は、直交グリッドから外れた形を知覚するのはやはり難しいと思いました。


こちらのサイトから、図面を参考にさせて頂きました。
KATABUCHI ARCHITECTS OFFICEの画像|エキサイトブログ (blog)
最後に
まとめ
今回は、安藤忠雄氏の初期の名作、KHギャラリー(小篠邸)を紹介しました。
安藤忠雄氏は、鉄筋コンクリートを打ちっ放しで使うので、冷たい印象を持たれがちですが、自然や敷地との調和を重要視していることがわかる作品でした。
このブログでは、「一日一建築」と称し、いろいろな建築家の方の建築を紹介しています。よかったらご一読ください。↓
Pioneer Of Attractive Archi – より深く名建築について知ることができるサイト。 (attractive-archi.tech)
前回紹介した建築はコチラ!
参照サイト等
・TOP | KH GALLERY
・KHギャラリー芦屋 | 日本建築めぐり | 建築パース.com
・安藤忠雄氏設計「小篠邸(KHギャラリー芦屋)」 | Livelog | 大阪府岸和田市の設計事務所ならI Live 田辺弘幸建築設計事務所
・KHギャラリー芦屋 レポート - あしや芸術祭
・兵庫の建築めぐり:KHギャラリー芦屋 (旧小篠邸) – 山本嘉寛建築設計事務所 YYAA
・KATABUCHI ARCHITECTS OFFICEの画像|エキサイトブログ (blog)
スポンサーリンク


“【KHギャラリー芦屋】安藤忠雄の初期の名作。小篠邸とも呼ばれる住宅兼ギャラリーで魅せる光とプロポーション” に対して1件のコメントがあります。